成排圓坯電永磁吊具

千豪磁電新型智能起重吊具產品介紹
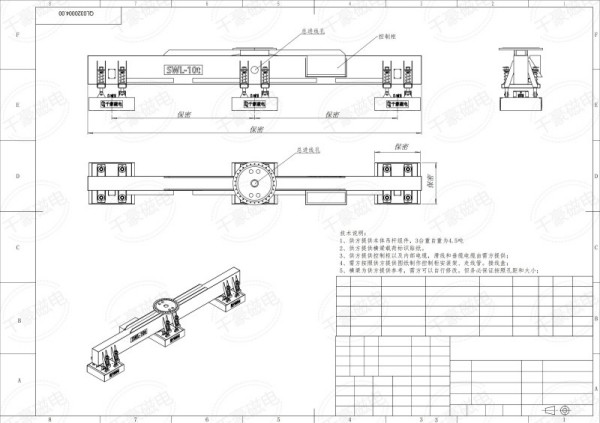
描述:園坯直徑160mm,一次吊5根,9-12米,一根2噸
額定起重量(t):10000
自重(t):4.5
響應速度(s):3s
工作電壓(V):DC360
工作電流(A):恒流62
最大拉脫力(t):30
行業應用:冶金與機械、重工制造、風力發電等
千豪磁電針對某重工機械裝備有限公司新廠房建設中的圓坯吊運需求,量身定制了一款高效節能智能起重吊具,有效解決了原有電磁鐵吊具自重過大、能耗過高的問題,實現了輕量化、高效率與低能耗的吊運作業。
本吊具采用千豪磁電自主研發的高性能磁性系統,通過優化磁路設計和選用新型輕質高導磁材料,在確保強磁吸附力和安全性的前提下,大幅降低設備本體重量。其智能控制系統可實時調節磁力輸出,適應不同直徑和數量的圓坯吊運,實現多根長工件同步平穩起吊,避免作業過程中發生偏移或滑落。
1.大幅降低設備自重:傳統電磁鐵吊具重量大,對行車承重及運行效率造成負擔。本產品自重僅4.5噸,顯著減輕起重系統負荷,延長設備使用壽命。
2.顯著減少能耗:原有吊具用電量巨大,運行成本高。新吊具憑借高效磁路設計與控制策略,有效降低電力消耗,節能表現突出。
3.提升吊運效率:可一次性吊運5根12米長、總重達10噸的圓坯,滿足高效連續作業需求,減少吊運次數,縮短作業周期。
客戶效益與滿意度
該吊具自投入應用以來,運行穩定,安全可靠,有效幫助客戶降低了綜合運營成本,提高了物料流轉效率。客戶對千豪磁電的定制化解決方案表示高度認可,認為其不僅契合其綠色化、智能化生產方向,更在經濟效益與操作實用性方面達到了預期目標。
千豪磁電將持續致力于為客戶提供可靠、經濟、環保的磁性吊裝解決方案,助力企業提升產能與競爭力。
如您也有智能工廠建設吊裝裝夾等煩惱,可以聯系我們,定制化出具電永磁鐵解決方案!


